Tilaajille

Vii­ti­sen­kym­men­tä uutta tonttia Tyr­nä­vän kes­kus­tan tun­tu­maan – Palkin ase­ma­kaa­va­muu­tos ase­te­taan näh­tä­vil­le

Tyrnävä
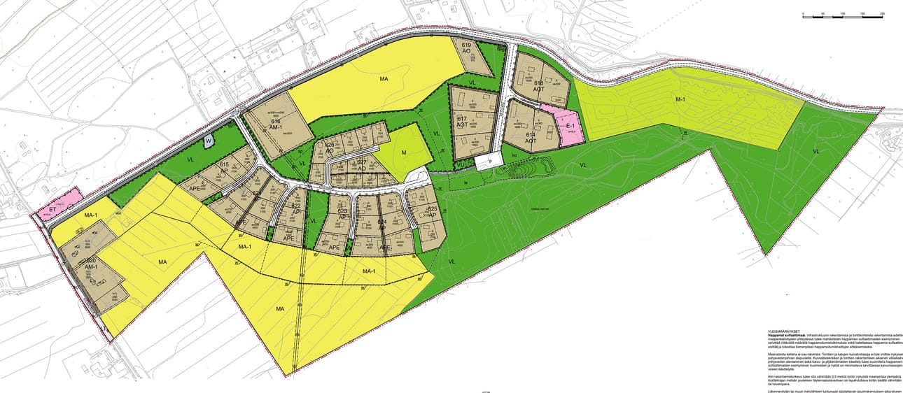
Palkin alueen asemakaavamuutos toisi Tyrnävän keskustan tuntumaan noin 50 uutta tonttia.
Palkin alueen asemakaavamuutos toisi Tyrnävän keskustan tuntumaan noin 50 uutta tonttia.
Kuva: Tilatohtorit Oy

Palkin alueen vuonna 2015 hyväksyttyä asemakaavaa ollaan muuttamassa,  koska alue ei ole lähtenyt kehittymään hevostoimintaa palvelevaksi.

Mainos
Rantalakeuden pelit

Pelaa Rantalakeuden digitaalisia pelejä

Aivojumppaa tai rentoa ajanvietettä – tutustu peleihin ja löydä suosikkisi

Aloita pelaaminen
Ilmoita asiavirheestä