Palkki
Korit kilisivät taas Tyrnävällä Palkin radalla – Frisbeegolfturnaus palasi uudistuneella konseptilla

Korit ki­li­si­vät taas Tyr­nä­väl­lä Palkin radalla – Fris­bee­golf­tur­naus palasi uu­dis­tu­neel­la kon­sep­til­la

23.08.2025 20:01
Tilaajille
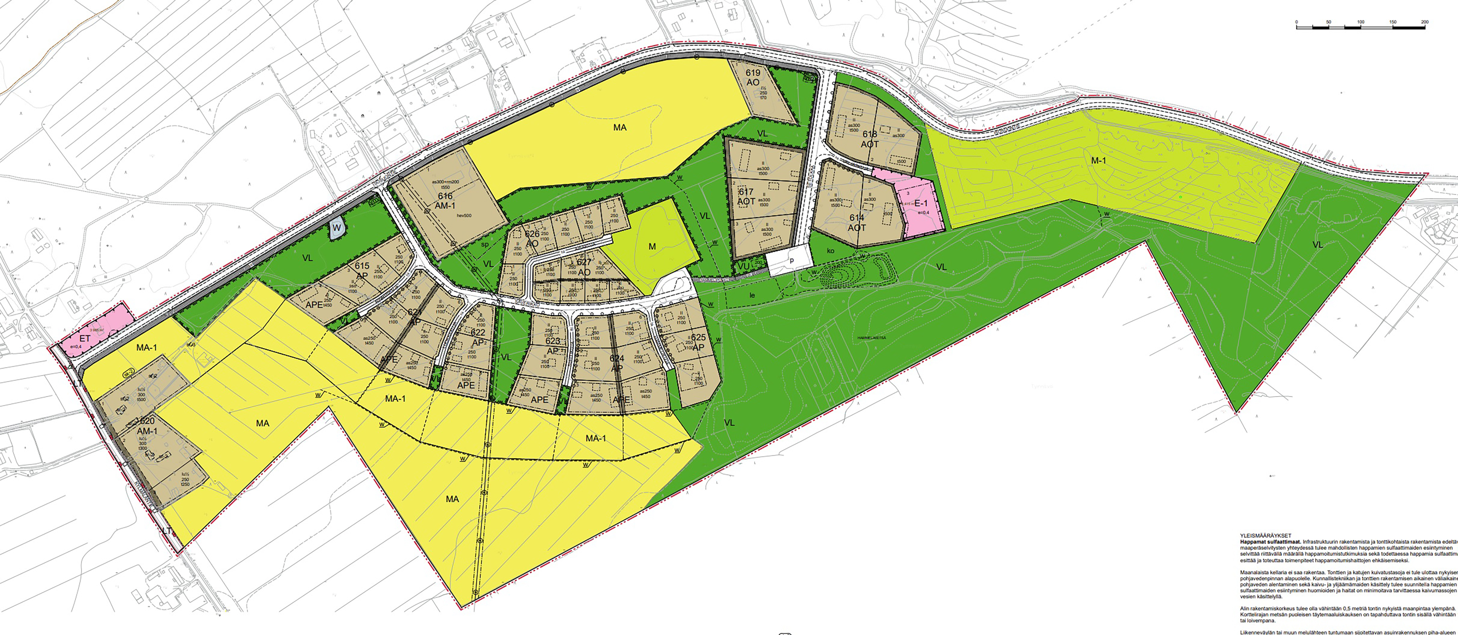
Viitisenkymmentä uutta tonttia Tyrnävän keskustan tuntumaan – Palkin asemakaavamuutos asetetaan nähtäville

Vii­ti­sen­kym­men­tä uutta tonttia Tyr­nä­vän kes­kus­tan tun­tu­maan – Palkin ase­ma­kaa­va­muu­tos ase­te­taan näh­tä­vil­le

17.10.2023 18:00
Tilaajille
Kuka sytytti tulipalon? Pakohuoneseikkailija pääsee Tyrnävällä sulkeltamaan 50-luvun maalaistalon elämään

Kuka sytytti tu­li­pa­lon? Pa­ko­huo­ne­seik­kai­li­ja pääsee Tyr­nä­väl­lä sul­kel­ta­maan 50-lu­vun maa­lais­ta­lon elämään

13.08.2021 19:00
Tilaajille
Suvi ja Olli-Pekka halusivat rakentaa Tyrnävälle: Palkkiin nousee nyt unelmien koti, jossa on tilaa sisällä ja ulkona

Suvi ja Ol­li-Pek­ka ha­lu­si­vat ra­ken­taa Tyr­nä­väl­le: Palk­kiin nousee nyt unel­mien koti, jossa on tilaa sisällä ja ulkona

22.11.2020 12:00
Tilaajille