Tilaajille

Hau­ru­ky­län teol­li­suus­alueen tien­ra­ken­nus­työt alkavat ke­vääl­lä ja alueen mark­ki­noin­ti käyn­nis­tyy toden teolla heti tien val­mis­tut­tua – monet yri­tyk­set odot­ta­vat vielä For­tu­min rat­kai­sua

Teollisuusalueen viemärikapasiteettia selvitellään, eikä alueelle voi sijoittua runsaasti vettä käyttävää yritystoimintaa.

Tyrnävä
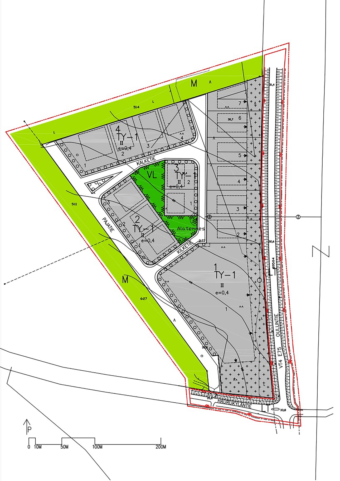
Haurukylän teollisuusalue.
Haurukylän teollisuusalue.
Kuva: Tyrnävän kunta

Haurukylän teollisuusalueen rakentuminen pääsee tänä vuonna viimein käyntiin. Teollisuusalueelle vievän runkolinjan rakentamisurakka kilpailutetaan talven aikana, ja sen rakentaminen aloitettaneen keväällä.

Ilmoita asiavirheestä